Nos avis clients
Nos avis clients
0

Appartement T3 avec Accès Plage à La Londe-les-Maures

La Londe-les-Maures (83250)
Réf : 4180

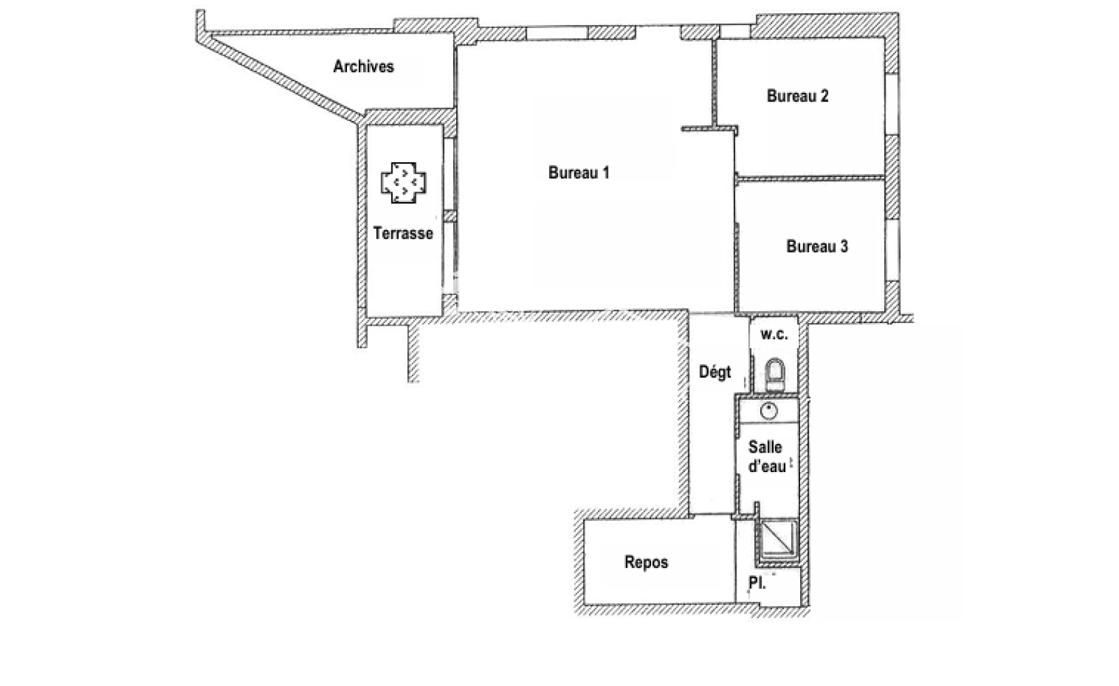
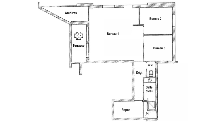
Découvrez ce bien de 64 m² situé en rez-de-chaussée, idéalement placé à l’Argentière, à La Londe-les-Maures. Que ce soit pour une résidence principale, un investissement en location saisonnière ou pour y installer des bureaux ou un commerce, ce bien offre un potentiel rare grâce à sa situation privilégiée avec accès direct à la plage.

Le bien se compose d’une entrée menant à une pièce principale spacieuse d’environ 30 m², offrant de nombreuses possibilités d’aménagement. Il dispose également de deux pièces pouvant être utilisées comme chambres ou bureaux, d’une salle d’eau et d’un WC séparé.

Vous profiterez également d’un espace extérieur avec une terrasse d’environ 6 m².

Ce bien se distingue par sa grande polyvalence, puisqu’il peut être utilisé aussi bien en habitation (type T3) qu’en local commercial ou en bureaux. Son emplacement en front de mer avec accès direct à la plage de l’Argentière constitue un véritable atout. Il est équipé d’une climatisation réversible assurant un confort optimal en toute saison.

Un fort potentiel d’évolution est également possible avec la possibilité d’acquérir, en complément, un espace de stockage attenant de 20 m², idéal pour agrandir l’appartement ou développer une activité professionnelle (30 000 € en sus).

Dans le cadre d’une location saisonnière, le bien peut accueillir confortablement 4 à 6 couchages, ce qui en fait un investissement attractif dans un secteur recherché. Il convient également parfaitement pour une activité commerciale bénéficiant d’une visibilité en bord de mer.

Informations pratiques : surface d’environ 64 m², terrasse d’environ 6 m². Les charges de copropriété s’élèvent à 130 € par mois et la taxe foncière est de 938 € par an. Diagnostic de performance énergétique : D pour la consommation énergétique et B pour les émissions de gaz à effet de serre.

Conformément à la réglementation, les informations sur les risques auxquels ce bien est exposé sont disponibles sur le site Géorisques : www.georisques.gouv.fr.

Pour obtenir plus d’informations ou organiser une visite, vous pouvez contacter Agnès Rousseau au 06 18 00 17 83 ou par e-mail à contact@leslondaises.com.

L’Agence Les Londaises, spécialiste du secteur de La Londe-les-Maures depuis 12 ans, vous accueille dans son agence boutique située au 4 rue Maréchal Foch, en plein centre-ville. Notre équipe vous accompagne avec expertise dans tous vos projets d’achat, de vente ou de location saisonnière d’appartements, maisons, garages et biens immobiliers dans la région.

Retrouvez l’ensemble de nos biens sur notre site : www.agenceleslondaises.com.

Prix du bien 276 000 €
Pièce(s) 3
Chambre(s) 2

Caractéristiques du bien

Caractéristiques Valeurs
Code postal 83250
Surface habitable (m²) 63,37 m²
Surface loi Carrez (m²) 63,37 m²
Nombre de chambre(s) 2
Nombre de pièces 3
Vue degagée
Nb de salle d'eau 1
Mode de chauffage Climatisation
Type de chauffage Air pulsé
Format de chauffage Individuel
Terrasse OUI
Murs mitoyens 1
Nombre de parking 1
Année de construction 1988
Quartier argentière

Infos financières

Caractéristiques Valeurs
Prix de vente honoraires TTC inclus 276 000 €
Prix de vente honoraires TTC exclus 263 000 €
Honoraires TTC à la charge acquéreur 4,94 %
Charges 130 €
Taxe foncière annuelle 938 €

Bilans énergétiques

DPE GES
Ce bien vous intéresse ?
Fieldset par défaut
Fieldset par défaut
Validation

* Champs obligatoires

Contacter l'agence
Validation
Les informations recueillies sur ce formulaire sont enregistrées dans un fichier informatisé par La Boite Immo agissant comme Sous-traitant du traitement pour la gestion de la clientèle/prospects de l'Agence / du Réseau qui reste Responsable du Traitement de vos Données personnelles. La base légale du traitement repose sur l'intérêt légitime de l'Agence / du Réseau. Elles sont conservées jusqu'à demande de suppression et sont destinées à l'Agence / au Réseau. Conformément à la loi « informatique et libertés », vous disposez des droits d’accès, de rectification, d’effacement, d’opposition, de limitation et de portabilité de vos données. Vous pouvez retirer votre consentement à tout moment en contactant directement l’Agence / Le Réseau. Consultez le site https://cnil.fr/fr pour plus d’informations sur vos droits. Si vous estimez, après avoir contacté l'Agence / le Réseau, que vos droits « Informatique et Libertés » ne sont pas respectés, vous pouvez adresser une réclamation à la CNIL. Nous vous informons de l’existence de la liste d'opposition au démarchage téléphonique « Bloctel », sur laquelle vous pouvez vous inscrire ici : https://www.bloctel.gouv.fr Dans le cadre de la protection des Données personnelles, nous vous invitons à ne pas inscrire de Données sensibles dans le champ de saisie libre.
Ce site est protégé par reCAPTCHA, les Politiques de Confidentialité et les Conditions d'Utilisation de Google s'appliquent.