Nos avis clients
Nos avis clients
0
Exclusif
Coup de coeur

T3 rénové de 59 m² avec terrasse de 12 m² – Front de mer à l’Argentière

La Londe-les-Maures (83250)
Réf : 4155

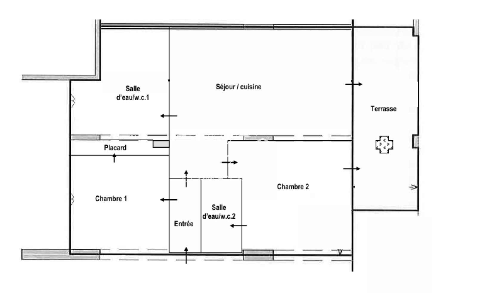
ARGENTIERE Situé en rez-de-jardin d’une résidence sécurisée en front de mer, ce T3 entièrement rénové offre un cadre rare et privilégié, idéal pour une résidence principale, secondaire ou un investissement locatif.

Aucune route à traverser : la plage est accessible directement depuis la résidence.

L’appartement propose une distribution fonctionnelle et agréable :

  • Entrée - Première chambre avec rangement - Suite parentale avec salle d’eau et WC, tournée directement sur la terrasse.

  • Seconde salle d’eau avec bel espace buanderie et wc

  • Séjour lumineux orienté plein Sud, ouvert sur l’extérieur grâce à une grande baie vitrée

  • Cuisine moderne équipée, ouverte sur la pièce de vie

Espace extérieur :

  • Terrasse d’environ 12 m², exposée Sud et sans vis-à-vis

  • Environnement verdoyant, propice aux repas, au farniente et à la détente, à quelques pas du sable

Prestations et confort :

  • Rénovation récente et de qualité

  • Double vitrage

  • Climatisation réversible

  • Résidence sécurisée

  • Parking résidentiel

Localisation :
Un emplacement exceptionnel en front de mer à l’Argentière, avec commerces, restaurants, marché saisonnier et transports accessibles immédiatement à pied. Un vrai mode de vie tout à pied.

Informations pratiques :

  • Charges : 123 €/mois

  • Taxe foncière : 1 000 €

  • DPE: C/A

Conformément aux nouvelles réglementations “Les informations sur les risques auxquels ce bien serait exposé sont disponibles sur le site Géorisques http://www.georisques.gouv.fr” Le bien se trouve dans la commune de La Londe -les-Maures, Côte d'Azur Varoise, entre Hyères et Le Lavandou. Entre collines, vignobles et plages, face aux Îles D’Or de Port Cros et Porquerolles, La Londe Les Maures s'étend entre terre et mer. Son coeur de village, actif toute l'année, est relié par la voie verte des Annamites aux plages de la Baie des Isles, de l’Argentière et au Port de plaisance Miramar . Ses paysages méditerranéens variés, ses espaces protégés et un climat d'une douceur exceptionnelle font de la Londe une destination privilégiée en villégiature et en vie annuelle. Idéalement désservie, tous les transports sont à proximité. Proche d’un accès à l'autoroute A57 reliant Toulon/Marseille/AIX/Nice, à quelques minutes de l’aéroport de Toulon-Hyères, et de la gare TGV de Hyeres/Toulon. Pour les informations et les visites, Agnes ROUSSEAU 0618001783 / contact@leslondaises.com Consultez toutes nos offres sur le site www.agenceleslondaises.com L' Agence les Londaises à La Londe-les-Maures vous accueille dans son Agence Boutique en centre ville au 4 rue Maréchal Foch. Spécialiste du secteur Londais depuis 12 ans, nous vous accompagnons efficacement dans tout projet d'achat ou de vente. L'agence immobilière Les Londaises de La Londe-les-Maures vous propose des offres d'appartements, de maisons et de garages, à vendre et vous aide dans la location saisonnière dans la région et ses environs.

Prix du bien 325 500 €
Pièce(s) 3
Chambre(s) 2

Caractéristiques du bien

Caractéristiques Valeurs
Code postal 83250
Surface habitable (m²) 59,05 m²
Surface loi Carrez (m²) 59,05 m²
Nombre de chambre(s) 2
Nombre de pièces 3
Vue Arborée
Nb de salle de bains 1
Nb de salle d'eau 1
Cuisine Américaine
Type de cuisine Equipée
Mode de chauffage Climatisation
Type de chauffage Air pulsé
Format de chauffage Individuel
Terrasse OUI
Murs mitoyens 1
Nombre de parking 1
Exposition Sud
Année de construction 1988
Quartier argentière

Infos financières

Caractéristiques Valeurs
Prix de vente honoraires TTC inclus 325 500 €
Prix de vente honoraires TTC exclus 310 000 €
Honoraires TTC à la charge acquéreur 5 %
Charges 123 €
Taxe foncière annuelle 1 000 €

Bilans énergétiques

DPE GES
Ce bien vous intéresse ?
Fieldset par défaut
Fieldset par défaut
Validation

* Champs obligatoires

Contacter l'agence
Validation
Les informations recueillies sur ce formulaire sont enregistrées dans un fichier informatisé par La Boite Immo agissant comme Sous-traitant du traitement pour la gestion de la clientèle/prospects de l'Agence / du Réseau qui reste Responsable du Traitement de vos Données personnelles. La base légale du traitement repose sur l'intérêt légitime de l'Agence / du Réseau. Elles sont conservées jusqu'à demande de suppression et sont destinées à l'Agence / au Réseau. Conformément à la loi « informatique et libertés », vous disposez des droits d’accès, de rectification, d’effacement, d’opposition, de limitation et de portabilité de vos données. Vous pouvez retirer votre consentement à tout moment en contactant directement l’Agence / Le Réseau. Consultez le site https://cnil.fr/fr pour plus d’informations sur vos droits. Si vous estimez, après avoir contacté l'Agence / le Réseau, que vos droits « Informatique et Libertés » ne sont pas respectés, vous pouvez adresser une réclamation à la CNIL. Nous vous informons de l’existence de la liste d'opposition au démarchage téléphonique « Bloctel », sur laquelle vous pouvez vous inscrire ici : https://www.bloctel.gouv.fr Dans le cadre de la protection des Données personnelles, nous vous invitons à ne pas inscrire de Données sensibles dans le champ de saisie libre.
Ce site est protégé par reCAPTCHA, les Politiques de Confidentialité et les Conditions d'Utilisation de Google s'appliquent.