Nos avis clients
Nos avis clients
0
Sous-compromis

T3 lumineux en front de mer – Plage de l’Argentière -Parking et grande terrasse (La Londe-les-Maures)

La Londe-les-Maures (83250)
Réf : 4148

Emplacement exceptionnel en front de mer à LA LONDE !avec terrasse de 47 m2 3 expositions

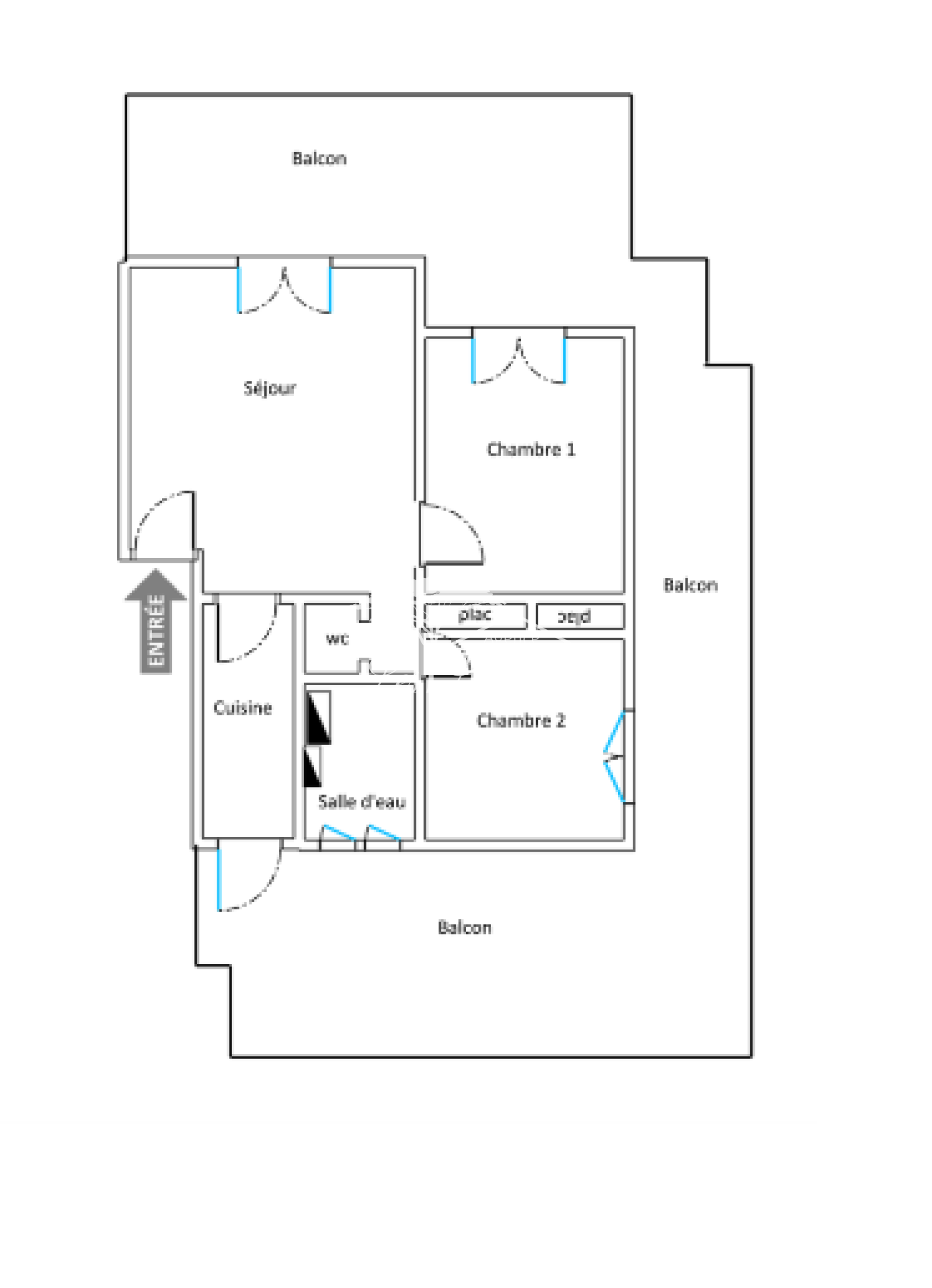
Situé en premier et dernier étage d’une petite résidence fermée en front de mer, ce bel appartement T3 de 50 m² offre un cadre de vie rare, à quelques pas seulement de la plage de l’Argentière, accessible directement par un chemin privé.

Descriptif du bien : Surface habitable : 50 m² Séjour lumineux ouvrant sur la terrasse Cuisine aménagée Deux chambres Salle d’eau et WC séparés

Atouts extérieurs : Grande terrasse de 47 m², triple exposition Est / Sud / Ouest

Espace couvert pour profiter de l’extérieur toute l’année Vue dégagée et belle luminosité

Place de parking - possibilité de double Garage en sus au prix de 38000€

Informations complémentaires : Copropriété bien entretenue

Charges mensuelles : 93 € Taxe foncière : 1396€ DPE : E / GES : B ( pouvant monter très facilement avec des fenêtres en pvc et clim)

Accès direct à la plage par un chemin privé Ce bien rare allie emplacement privilégié, calme, et vie en face de la mer — idéal pour une résidence secondaire ou un pied-à-terre en bord de mer.

Conformément aux nouvelles réglementations, « les informations sur les risques auxquels ce bien est exposé sont disponibles sur le site Géorisques : www.georisques.gouv.fr ».

Le bien se trouve dans la commune de La Londe-les-Maures, sur la Côte d'Azur varoise, entre Hyères et Le Lavandou. Entre collines, vignobles et plages, face aux îles d’Or (Port-Cros et Porquerolles), La Londe-les-Maures s'étend entre terre et mer.

Son cœur de village, actif toute l'année, est relié par la voie verte des Annamites aux plages de la Baie des Isles, de l’Argentière et au port de plaisance Miramar. Ses paysages méditerranéens variés, ses espaces protégés et son climat d'une douceur exceptionnelle font de La Londe une destination privilégiée pour les vacances et pour la vie à l'année. Idéalement desservie, la commune est à proximité de tous les transports. Elle est proche d’un accès à l'autoroute A57 (reliant Toulon, Marseille, Aix et Nice), à quelques minutes de l’aéroport de Toulon-Hyères, et des gares TGV de Hyères et de Toulon. Pour les informations et les visites, contactez Agnès Rousseau au 06 18 00 17 83 ou par e-mail à contact@leslondaises.com. Consultez toutes nos offres sur le site www.agenceleslondaises.com.

L'Agence Les Londaises à La Londe-les-Maures vous accueille dans son agence-boutique en centre-ville, au 4 rue Maréchal Foch. Spécialistes du secteur londais depuis plus de 10 ans, nous vous accompagnons efficacement dans tous vos projets d'achat ou de vente. Nous vous proposons une sélection d'appartements, de maisons et de garages à vendre, et nous vous aidons également pour la location saisonnière dans la région et ses environs.


Les informations sur les risques auxquels ce bien est exposé sont disponibles sur le site Géorisques
Prix du bien 450 000 €
Pièce(s) 3
Chambre(s) 2

Caractéristiques du bien

Caractéristiques Valeurs
Code postal 83250
Surface habitable (m²) 50 m²
Surface loi Carrez (m²) 50,34 m²
Nombre de chambre(s) 2
Nombre de pièces 3
Nombre de niveaux 1
Ascenseur NON
Vue degagée
Nb de salle de bains 1
Mode de chauffage Electrique
Type de chauffage Radiateur
Format de chauffage Individuel
Terrasse OUI
Nombre de parking 1
Exposition Sud
Année de construction 1974
Quartier argentière

Infos financières

Caractéristiques Valeurs
Prix de vente honoraires TTC inclus 450 000 €
Prix de vente honoraires TTC exclus 430 000 €
Honoraires TTC à la charge acquéreur 4,65 %
Charges 93 €
Taxe foncière annuelle 1 396 €

Bilans énergétiques

DPE GES
Ce bien vous intéresse ?
Fieldset par défaut
Fieldset par défaut
Validation

* Champs obligatoires

Contacter l'agence
Validation
Les informations recueillies sur ce formulaire sont enregistrées dans un fichier informatisé par La Boite Immo agissant comme Sous-traitant du traitement pour la gestion de la clientèle/prospects de l'Agence / du Réseau qui reste Responsable du Traitement de vos Données personnelles. La base légale du traitement repose sur l'intérêt légitime de l'Agence / du Réseau. Elles sont conservées jusqu'à demande de suppression et sont destinées à l'Agence / au Réseau. Conformément à la loi « informatique et libertés », vous disposez des droits d’accès, de rectification, d’effacement, d’opposition, de limitation et de portabilité de vos données. Vous pouvez retirer votre consentement à tout moment en contactant directement l’Agence / Le Réseau. Consultez le site https://cnil.fr/fr pour plus d’informations sur vos droits. Si vous estimez, après avoir contacté l'Agence / le Réseau, que vos droits « Informatique et Libertés » ne sont pas respectés, vous pouvez adresser une réclamation à la CNIL. Nous vous informons de l’existence de la liste d'opposition au démarchage téléphonique « Bloctel », sur laquelle vous pouvez vous inscrire ici : https://www.bloctel.gouv.fr Dans le cadre de la protection des Données personnelles, nous vous invitons à ne pas inscrire de Données sensibles dans le champ de saisie libre.
Ce site est protégé par reCAPTCHA, les Politiques de Confidentialité et les Conditions d'Utilisation de Google s'appliquent.
Ces biens peuvent vous intéresser